Описание
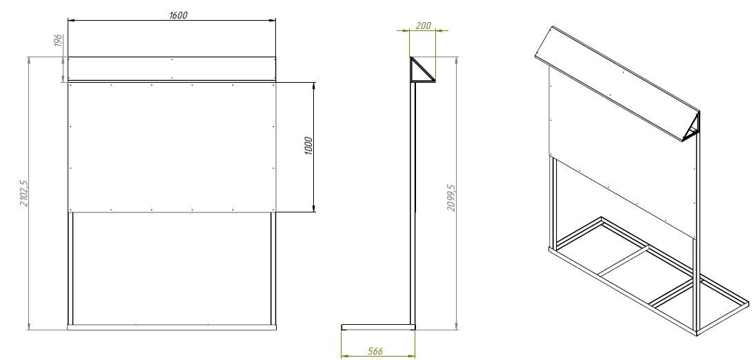
Основной материал стенда витрины: Металлокомпозит 3 мм, рама из профтрубы 40х40 мм, на стойках из проф. трубы 40х40 высотой 1900 мм, уголок для утяжелителей, козырёк из оцинкованного металла 0,8 мм, порошковая окраска по RAL 7035. Код: ЦБ-00092532